Master Plan: Waste Management System
In August 2023, I took part in a one month community service program (Kuliah Kerja Nyata) in Ngargosoko Village, a small rural area located in Kaliangkrik District, Magelang, Central Java. During my stay, I observed that the village still struggled with waste management, most household waste was burned or dumped improperly. Through discussions with local residents and the village government, I initiated the idea to develop a Waste Management System Master Plan, aimed at creating a long-term vision that could also serve as a proposal for future government or donor funding.
Existing Conditions:



Objective of the Master Plan:
To provide a structured and practical roadmap for improving the village’s waste management system.
To break down achievable steps that can be gradually implemented by the community.
To serve as a supporting document for funding proposals to the local government or CSR programs.
Methods:


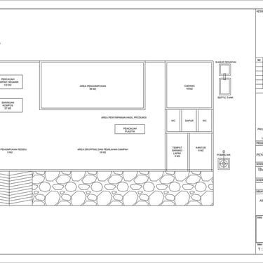
Key Components:
Waste Source & Type Mapping – Identification of waste sources (households, shops, schools, etc.) and categorization.
Existing Infrastructure Assessment – Road access, land availability, informal collection systems.
Management Strategy – Waste collection, sorting, composting, transport system.
Stakeholder Engagement Plan – Opportunities for collaboration with the Environmental Office, waste banks, or private partners.
Although I was only in the village for a short time, I hope this Master Plan can serve as a starting point for long-term change. With strong community involvement and proper guidance, a cleaner and more sustainable waste management system is within reach.







